|
aufgrund zerfallender sozialer strukturen in unserer gesellschaft, ging ich von einem grundriss aus, der sich hauptsächlich um die belange
eines singleshaushaltes kümmert. wohnen, schlafen und arbeiten finden hier innerhalb eines appartments statt.
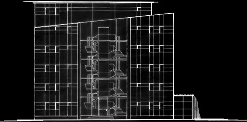
wir sollten uns gedanken über das zukünftige wohnen und dessen organisation machen, weswegen ich damals ein solarhaus entworfen habe - die
fassade besteht aus photovoltaik-modulen, im inneren werden die geräte der wohneinheiten über zentrale recheneinheiten (gebäudeleittechnik) angesteuert
|

Tuschezeichnung Grundriss
|